artist impressions
illustraties
ontwerp
jan barten
digitaal
schetsmatig
vogelvluchten
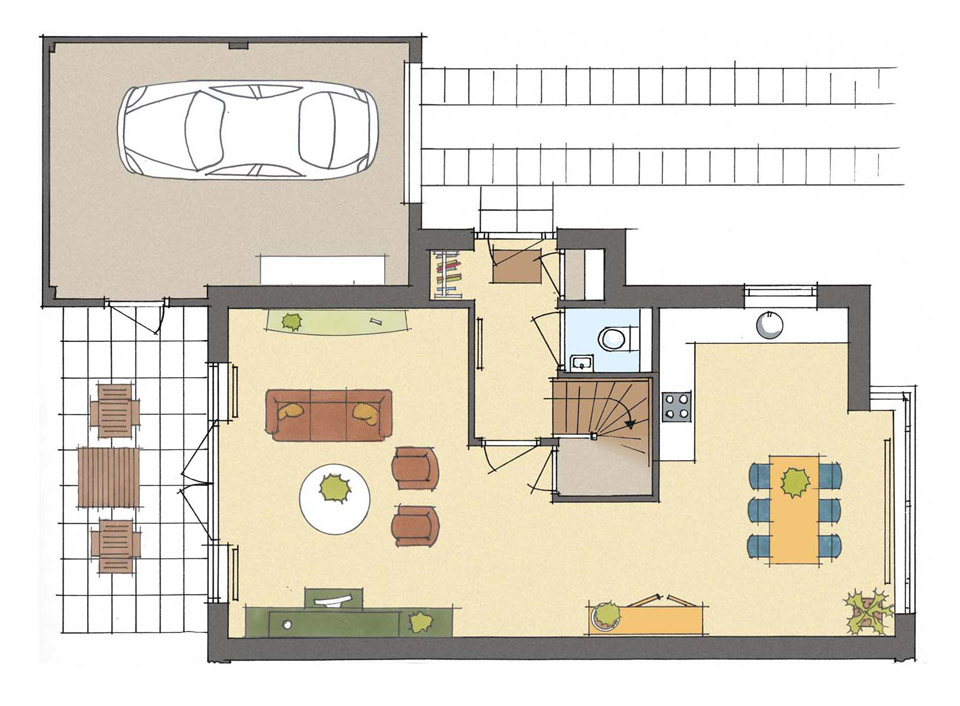
plattegronden
Baron
print / download
share